Intégration du variateur de vitesse dans un réseau PROFINET
Dans cet exemple, l'architecture d'appareil suivante est utilisée.
- Système de pilotage amont Siemens (API) SIMATIC S7
- Variateur d'application MOVIDRIVE® technology MDX9..
- Convertisseur de signaux USM21A
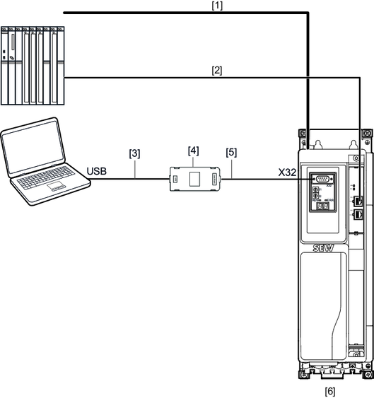
L'illustration suivante représente schématiquement l'architecture de l'appareil.

[1] | Tension d'alimentation DC 24 V |
[2] | Raccordement bus de terrain |
[3] | Câble de raccordement USB, type USB A-B |
[4] | Convertisseur de signaux USM21A |
[5] | Câble d'interface avec un connecteur RJ10 et un connecteur Sub-D 9 pôles |
[6] | MOVIDRIVE® technology |
Les outils suivants sont utilisés pour la configuration et la mise en service des appareils.
- MOVISUITE® pour les variateurs de vitesse SEW
- TIA Portal (SIMATIC STEP 7) de la société Siemens pour l'API
L'intégration du variateur de vitesse dans le réseau PROFINET s'effectue en plusieurs étapes.
- Configuration des participants du bus de terrain
- Configuration du variateur de vitesse dans MOVISUITE®
Informations complémentaires












