Installation mécanique
Informations complémentaires
- Consignes d'installation
- Outils et accessoires pour le montage
- Conditions pour le montage
- Dégagement minimal et position de montage
- Préparation de la paroi arrière de l'armoire de commande
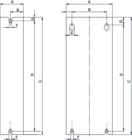
- Montage des variateurs des tailles 0S et 0L
- Montage des variateurs de vitesse des tailles 3 à 8
- Montage de la tôle de blindage
- Retrait et pose du couvercle de protection
- Montage et démontage des protections contre le toucher
- Montage des résistances de freinage
- Montage de la self réseau
- Montage du filtre réseau


















