Schaltschrankrückwand vorbereiten
Gehen Sie folgendermaßen vor:
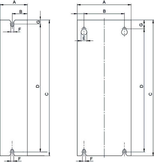
- Bohren Sie die Löcher gemäß dem folgenden Bohrbild.
- Schneiden Sie das Innengewinde in die Löcher gemäß der eingesetzten Schraubengröße.

Bohrbild 1 | Bohrbild 2 |
Umrichter | Abmessungen der Gerätegrundplatte in mm | Bohrbild | ||||||
|---|---|---|---|---|---|---|---|---|
A | B | C | D | E | F | G | ||
Baugröße 0S | 80 | 40 | 220 | 200 | 12 | 6 | 10 | 1 |
Baugröße 0L | 80 | 40 | 309 | 288 | 12 | 6 | 10 | |
Baugröße 3 | 105 | 80 | 350 | 325 | 12 | 6 | 18 | 2 |
Baugröße 4 | 135 | 80 | 350 | 325 | 12 | 6 | 18 | |
Baugröße 5 | 196 | 160 | 471 | 440 | 13 | 7 | 18 | |
Baugröße 6 | 240 | 200 | 544 | 510 | 13 | 7 | 18 | |
Baugröße 7 | 320 | 220 | 990 | 950 | 23 | 11 | 25 | |
Baugröße 8 | 518 | 450 | 990 | 950 | 23 | 11 | 25 | |